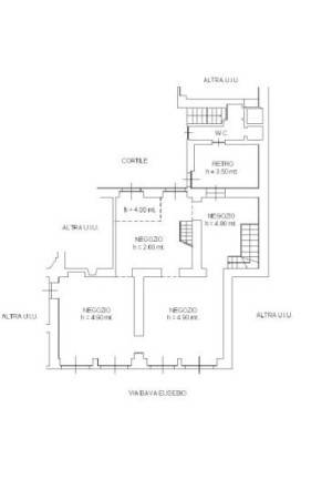
A pochi passi da Piazza Vittorio, in zona di forte passaggio pedonale, in via Bava è presente lo stabile che ospita il locale commerciale in vendita. Locale che si sviluppa su due livelli per una superficie commerciale di 226 mq con 4 vetrine e grande visibilità. E’ composto da due ampi ambienti vetrinati con 4,90 mt di altezza, e tre ulteriori vani e servizio al piano terra. Da scala interna si accede al piano interrato, di grosse dimensioni. Tutto il locale presenta soffitti a volta con mattoni a vista, anche il piano sottostante, il tutto mantenuto e restaurato ottimamente. Riscaldamento centralizzato con termovalvole. Il locale presenta canna fumaria e si presta ad attività ricettive. A disposizione nel cortile, posto auto in vendita a 35.000 €. Per informazioni: GIEFFE PATRIMONI Real Estate Advisor, Torino – Londra – Alba – Milano – Roma. (+39) 011 / 76.000.11
