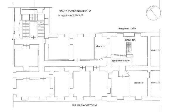
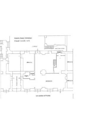
Ad un passo da Piazza Vittorio e da Lungo Po Armando Diaz, nel quartiere Borgo Nuovo, si trova lo stabile di epoca ottocentesca che ospita l’immobile. Il fabbricato è in ottime condizioni manutentive grazie a interventi recenti sulle parti comuni dello stabile. La proprietà misura 221 mq, quasi interamente sviluppati al piano terra. L’immobile presenta un’unica sala aperta di grandi dimensioni, di cui una parte è occupata da un importante bancone mentre il resto degli spazi è dedicato alla somministrazione. Il locale dispone inoltre di una sala fumatori chiusa e dotata di ventilazione forzata usabile contemporaneamente da 12 persone, servizi a norma disabili ed ampio spazio cucina oltre che spogliatoio nel retro. Uscita di sicurezza sulla corte interna del condominio, che permette di svolgere operazioni di carico-scarico. Con scala interna si accede al piano interrato ideale come magazzino che oggi ospita celle frigo e magazzino alimenti. Il locale commerciale gode di ottime condizioni generali. Dotato di canna fumaria, l’immobile è stato oggetto di intervento di ristrutturazione circa 10 anni fa. L’immobile si presenta in ottime condizioni generali. È dotato di canna fumaria e ha subito una ristrutturazione circa dieci anni fa, durante la quale sono stati installati il sistema di riscaldamento ad aria e la coibentazione acustica del locale. Quest’ultima è stata posata sotto le volte in mattoni, che altrimenti avrebbero un’altezza di circa 4,10 metri. La coibentazione in lana di vetro garantisce un significativo contenimento della dispersione sonora verso il condominio, migliorando l’impatto acustico dell’attività. Le spese di riscaldamento fisse ammontano a 700 euro annui, mentre le spese condominiali sono pari a 260 euro mensili. Di fronte alle vetrine si trova il dehor, che offre un importante spazio esterno all’attività attualmente presente. L’immobile è locato con contratto in scadenza nel 2029. Categoria catastale C/1, rendita 2600 euro. Per informazioni: GIEFFE PATRIMONI Real Estate Advisor, Torino – Londra – Alba – Milano – Roma – Monza. (+39) 011 / 76.000.11 Tutti i dati sopra riportati non costituiscono elementi né presupposti contrattuali
