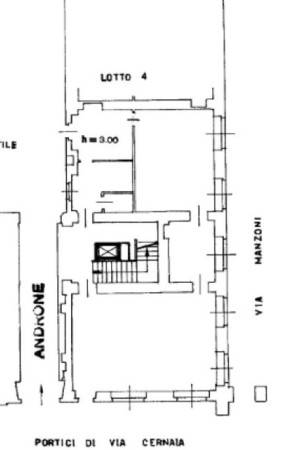
In Via Cernaia, sotto il porticato che collega Piazza Castello a Porta Susa è sito l’edificio che ospita il locale commerciale. Distribuito su 140 mq su unico livello, il locale si compone di due ampi ambienti plurivetrinati, disponendo infatti di 8 vetrine ad angolo tra via Cernaia e Via Manzoni. Riscaldamento autonomo ad aria, caldo freddo.L’immobile presenta canna fumaria da videoispezionare. Spese di gestione ordinaria molto contenute. Richieste garanzie e fideiussione bancaria pari a 3 mensilità. Per informazioni: GIEFFE PATRIMONI Real Estate Advisor, Torino – Londra – Alba – Milano – Roma – Monza. (+39) 011 / 76.000.11 Tutti i dati sopra riportati non costituiscono elementi né presupposti contrattuali
