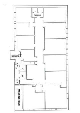
Rif: de sonnaz – Nel quartiere della Crocetta di Torino, in prossimità di corso Galileo Ferraris della stazione di Porta Susa e di piazza Solferino, all’interno di un edificio elegante, l’ufficio/studio accatastato A/10 è sito al piano secondo di uno stabile di cinque con doppio ascensore. Lo studio di alta rappresentanza risulta in ottime condizioni interne, dopo la ristrutturazione completa del 2009, ed è composto da doppio ingresso (uno dei quali da balcone esterno), una prima sala adibita a reception, nove camere adibite ad ufficio, due sale riunioni e un servizio doppio con antibagno. Tre arie con affaccio sulle vie e su corte interna con balcone. Cantina ampia all’interrato. Il riscaldamento è centralizzato a metano a pavimento per una spesa di 2700 euro per anno. Impianto di condizionamento con dieci splitter e cinque motori esterni, cablaggio rete ethernet in tutti gli ambienti con due linee in fibra ottica, impianto elettrico certificato e impianto di allarme con sim dedicata e telecamere di videosorveglianza. Basse spese condominiali, con portineria soppressa, per un importo di 1800 euro per anno. Vi è la possibilità di convertire a residenziale per la creazione di due o più appartamenti. Libero all’atto. Per informazioni: GIEFFE PATRIMONI Real Estate Advisor, Torino – Londra. (+39) 011 / 76.000.11
