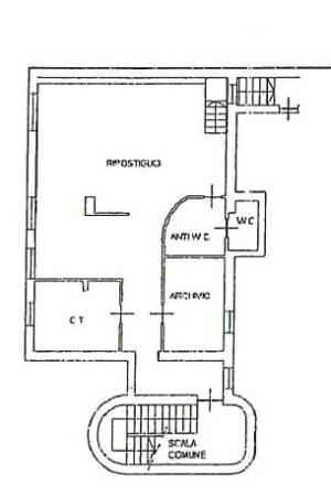
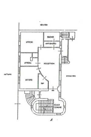
L’elegante edificio, eretto nel 1980, è un esempio di architettura che unisce il fascino del passato alla modernità: disposto su quattro livelli si presenta in uno stato impeccabile frutto di un’accurata ristrutturazione nel 2000. Gli interni di questa proprietà si distinguono per i soffitti affrescati, autentiche opere d’arte realizzate da esponenti dell’Accademia delle Belle Arti, che trasformano gli spazi di transizione in autentiche gallerie d’arte conferendo all’immobile un’aura di creatività e raffinatezza. Il piano seminterrato, trasformato in una suggestiva sala d’aspetto, rivela un’ampia zona d’attesa con un’accogliente zona salotto, ideale per incontri, una zona dedicata alle cene con cucina e servizio. La presenza di una centrale termica e di una camera blindata sottolineano la versatilità di questo spazio, rendendolo adatto a molteplici utilizzi. Il piano rialzato accoglie un locale di altissima fattura, caratterizzato da un ingresso prestigioso con colonne a vista che si affacciano su un’ampia reception: due uffici di rappresentanza, una sala d’attesa, un servizio con antibagno ed un ripostiglio completano questo livello. I due uffici presentano degli splendidi soffitti a cassettoni decorati, pregevole fattura di un artigiano che ha preso ispirazione dai portoni delle chiese. Al piano primo, ulteriori spazi funzionali includono una seconda zona reception, doppio servizio, camere doppie e ulteriore ripostiglio. L’accesso al magnifico terrazzo di 70 mq aggiunge un tocco di esclusività, offrendo uno spazio all’aperto ed un’ottima vista. Un piano sottotetto completa la proprietà, accessibile da scala interna. Il cortile pavimentato in auto bloccanti, copre una superficie di circa 250 mq, con ulivi e piante curate con attenzione, permettendo l’accesso all’ampio box di 50 mq con soppalco accatasto. Sistema di riscaldamento autonomo, con aria al piano terra e gas nei piani rimanenti. Infissi in doppio vetro legno di seconda generazione, impianti impeccabili e finiture di alto standing conferiscono a questa proprietà carattere distintivo, mentre la locazione nel corso degli anni ad istituti bancari in cerca di sede di rappresentanza sottolinea la sua vocazione come immobile di prestigio Categoria catastale A/10 Per informazioni: GIEFFE PATRIMONI Real Estate Advisor, Torino – Londra – Alba – Milano – Roma. (+39) 011 / 76.000.11
