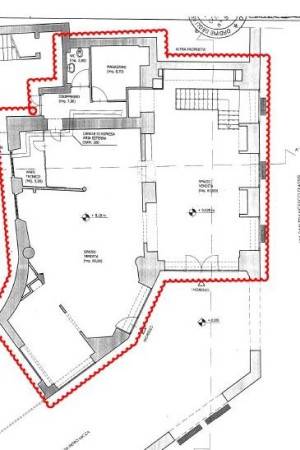
In Via Pietro Micca, una delle arterie più iconiche e rappresentative del centro di Torino, è situato un immobile commerciale di assoluto pregio, capace di coniugare storicità, visibilità e prestigio in un contesto unico. L’unità si sviluppa su due livelli, con la maggior parte della superficie collocata al piano terra, assicurando massima funzionalità e grande impatto scenico. Le sei ampie vetrine angolari affacciate su Via Pietro Micca e Via San Francesco d’Assisi conferiscono al locale un’eccezionale luminosità e un’ineguagliabile visibilità, rendendolo ideale per attività che necessitano di forte presenza e riconoscibilità. A completare l’offerta, vi è la possibilità di acquisire anche il contratto di locazione in essere dell’adiacente locale commerciale di circa 160 mq, anch’esso disposto su due livelli e caratterizzato da una posizione angolare strategica tra Via Bertola e Via San Francesco d’Assisi. Questa integrazione consentirebbe di ampliare ulteriormente la superficie disponibile, garantendo una tripla esposizione di assoluto valore e una continuità visiva che massimizza l’impatto commerciale. La posizione, sul lato dei portici di Via Pietro Micca, è tra le più privilegiate della città: il costante flusso pedonale proveniente da Piazza Castello, Via Cernaia e Porta Susa assicura una visibilità senza pari e una clientela eterogenea e di alto profilo. La proprietà, attualmente utilizzata come attività di vendita abbigliamento, si presenta in buone condizioni generali ed è perfetta per brand, marchi o realtà commerciali che ambiscano a inserirsi in uno degli indirizzi più ricercati e prestigiosi del panorama torinese. Per informazioni: GIEFFE PATRIMONI Real Estate Advisor, Torino – Londra – Alba – Milano – Roma – Monza. (+39) 011 / 76.000.11 Tutti i dati sopra riportati non costituiscono elementi né presupposti contrattuali
