Cover Image
via Carlo Cipolla 6, 10149, Torino
Fabbricato con uffici, magazzino e cortile. Indipendente
€ 350.000
€ 350.000
6 locali
833 mq

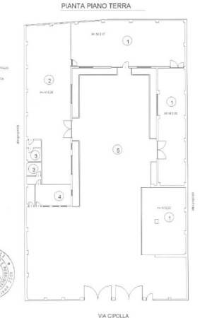
In Corso Toscana , e precisamente in Via Carlo Cipolla, si trova il lotto che ospita il fabbricato indipendente. Sviluppato su una superficie totale di 833 mq, si compone di area coperta di superficie di 333 mq, scomposta in uffici direzionali e magazzino, tettoie per una superficie di 59 mq e il cortile esterno tra spazio di manovra e giardino per un totale di 441 mq. Il fabbricato edificato nel 1970, è stato completamente ristrutturato nel 2006, rinnovando completamente la parte ad uso uffici di circa 120 mq, installando aria condizionata, ventilazione e cablando tutta la superficie: la parte ad uso magazzino, di circa 180 mq rimane spazio utile e sfruttabile anche grazie al’accesso carrabile alla struttura, rinforzato per il passaggio carichi pesanti. La parte coperta si completa di circa 50 mq utilizzati per il servizio e lo spogliatoio del personale. La copertura della struttura, piana in cemento armato è stata anch’essa rivista nel 2006 quando è stato anche eseguito un intervento per isolare il perimetro della zona uffici. La proprietà si trova in ottimo stato di manutenzione, con sistema di videosorveglianza, antifurto perimetrale e volumetrico gestibile a distanza così come la gestione dei diversi accessi alla struttura, differenziati e anch’essi controllabili a distanza. Categoria catastale D/7 per una rendita di 2.937 €. Il compendio si presta per diversi tipi di attività grazie alle diverse destinazioni degli spazi: si può ipotizzare anche attività di ristorazione che possano così sfruttare al meglio l’area esterna. Non è concesso il cambio di destinazione d’uso residenziale. Per informazioni: GIEFFE PATRIMONI Real Estate Advisor, Torino – Londra – Alba – Milano – Roma. (+39) 011 / 76.000.11

Dati principali
  • Riferimento: cipolla
  • Locali: 6
  • Superficie: 833 mq
  • Tipologia: Negozio
Dettagli
Caratteristiche
Tipologia Uso: commerciale
Stato Immobile: libero
Riscaldamento: autonomo
Classe Energetica: G
IPE: 65 kWh/m² anno
Posizione
Planimetria
Invia un messaggio
Richiedi maggiori informazioni
Immobili simili
€ 5.000
€ 5.000
Contatta mail
0 locali
140mq
Via Cernaia. Locale commerciale in locazione. 8 vetrine
0 locali
140 mq
€ 280.000
€ 280.000
Contatta mail
3 locali
390mq
Corso Moncalieri. Locale commerciale. 390 mq.
3 locali
390 mq
€ 420.000
€ 420.000
Contatta mail
4 locali
221mq
Via Maria Vittoria. Locale commerciale 221 mq. Canna fumaria
4 locali
221 mq