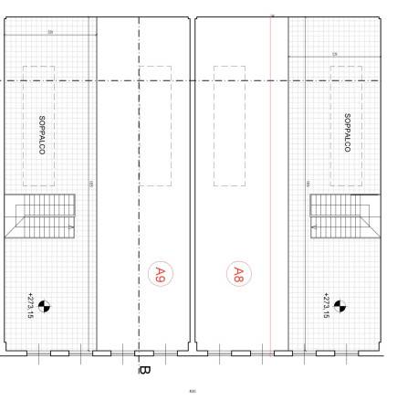
Nell’area industriale di Fontaneto, in Corso Egidio Olia, in posizione adiacente alla rotatoria che collega Via Tetti Fasano e la Circonvallazione, è sito il fabbricato a destinazione industriale e artigianale che ospita i lotti oggetto di locazione. Realizzato nei primi anni 2000, il complesso si compone di più unità ad analoga impostazione: l’immobile, composto da due lotti attigui, si sviluppa su una superficie totale di 430 mq al piano terreno, distribuiti tra aree produttive, due porzioni ad uso ufficio, due antibagni, due servizi conformi alla normativa per disabili, scala interna e relativo ripostiglio, oltre a due piani soppalcati ciascuno di 100 mq circa. L’immobile dispone di doppio accesso carraio di circa 4,90 m, altezza sotto trave di 7,00 m e altezza sotto soppalco di 4,15 m. Di fronte all’ingresso è inoltre presente una porzione di cortile in uso esclusivo, ideale come spazio di manovra e parcheggio, della superficie di circa 300 mq. Le unità vengono consegnate con predisposizione per l’allaccio del gas già presente in ciascun lotto, mentre gli impianti elettrici potranno essere calibrati ed eventualmente adeguati dal conduttore in funzione delle specifiche esigenze operative. Il fabbricato è inoltre dotato di anello antincendio a servizio delle singole unità. Richiesta iniziale pari a 1700 €/mese oltre IVA, con canone scalettato fino a raggiungere, a regime, 3000 €/mese oltre IVA. Disponibilità da Settembre 2026. A seconda del profilo del conduttore, potrà essere richiesta cauzione oppure fideiussione bancaria. Per informazioni: GIEFFE PATRIMONI Real Estate Advisor, Torino – Londra – Alba – Milano – Roma – Monza. (+39) 011 / 76.000.11 Tutti i dati sopra riportati non costituiscono elementi né presupposti contrattuali
