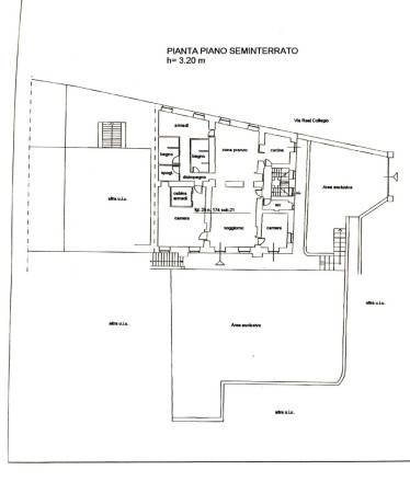
Rif: moncalieri – In pieno centro storico a Moncalieri a pochi passi dalla collina di Torino, in via Real Collegio, parte di una residenza storica del 1751 ( Palazzo Filiberto Nasi ), in posizione dominante è possibile ammirare un ottimo panorama grazie ad un ampio giardino privato che fa da cornice ad un appartamento di 230 mq sito al piano terreno. L’appartamento è il frutto di un frazionamento che ha dato origine ad un condominio dal carattere esclusivo ed è dotato di ampio parcheggio di ingresso privato con cancello elettrico. Sito al piano terreno, la disposizione interna si sviluppa su un ampio soggiorno con camino dal quale si accede ad una ampia sala da pranzo comunicante con la cucina abitabile dotata di dispensa. Camera o camera studio con accesso diretto al giardino, ampissima camera da letto con cabina armadio interna. Tre servizi. Studio. Lavanderia. Disimpegno privato che porta all’ ampia taverna con volta in mattone a vista, due cantine arieggiate. Sono presenti due posti auto scoperti e di proprietà in ingresso. L’appartamento si caratterizza per la presenza di un grandissimo giardino di oltre 400 mq completamente piantumato con impianto di irrigazione automatica. Immobile esposto a pieno sud. Serramenti finestre con vetro anti-sfondamento ed inferriate. Predisposizione impianto di antifurto. Impianto di riscaldamento autonomo a metano per una spesa di circa 1300.00 euro per anno. Le spese condominiali ammontano a circa 1300.00 euro per anno. Zona residenziale di altissimo livello a pochi passi dalla città ed appena 15 minuti di auto dalla Gran Madre di Torino ed ad appena due passi dal castello di Moncalieri. Soluzione abitativa ideale anche per famiglie con bambini grazie alla distribuzione degli spazi su unico piano senza scale e con ambienti molto spaziosi. Ottima privacy garantita. E’ ammessa la presenza di animali domestici. Per informazioni: GIEFFE PATRIMONI SRL, StudioImmobiliareAssociato, Torino – London. (+39) 011 / 76.000.11
