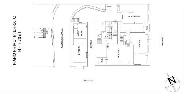
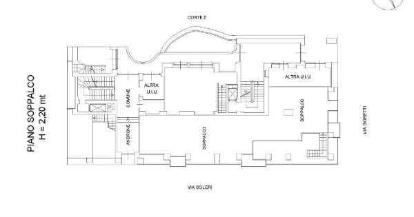
Rif: soleri – Nel cuore del centro di Torino, in via Marcello Soleri angolo via Piero Gobetti, il locale polifunzionale completamente vetrinato sulle due vie è situato in prossimità della via commerciale per eccellenza della città di Torino: via Lagrange, ed è accatastato con categoria C1 per quello che concerne la parte al piano terra che misura 175.00 mq, con categoria C1 per quello che concerne la parte soppalcata che misura 125.00 mq e con categoria C2 per quello che concerne la parte magazzino al piano interrato che misura 100.00 mq. Parte di un palazzo signorile del 1950 il locale commerciale ha ingresso a piano terreno da strada con più vetrine a tutta altezza. Spazi suddivisibili a seconda delle necessità; in questo momento la struttura risulta distribuita in una grande zona show-room al piano terreno; la scala interna permette accesso al piano soppalco anche esso al momento show-room. Al piano interrato un magazzino raggiungibile con scala interna al negozio con cinque locali deposito e due servizi igienici. Spese condominiali valutabili in 7300,00 euro per anno con servizio portineria. Impianti a norma, riscaldamento centralizzato a metano in tutti gli ambienti con una spesa valutabile in 2400.00 euro per anno, impianto ad aria condizionata. Ad oggi sussiste regolare contratto di affitto in essere con primaria società commerciale, e vi è la possibilità di fornire ogni dettaglio in merito allo stesso. Ottimo posizionamento a livello commerciale. Facilità di parcheggio sia piano strada che interrato comunale. Vicinanza zona pedonale di grande prestigio con la presenza dei più importanti tenants commerciali italiani ed esteri. Ottima visibilità. Rendita catastale ( C1+C2 ) 12.330,46 euro. Non viene richiesta alcuna buona uscita. I locali in affitto saranno liberi a fine gennaio 2019. Possibile stipulare un contratto di affitto per un canone pattuito di 18.000,00 euro per mese. Per informazioni: GIEFFE PATRIMONI Real Estate Advisor, Torino – Londra. (+39) 011 / 76.000.11
