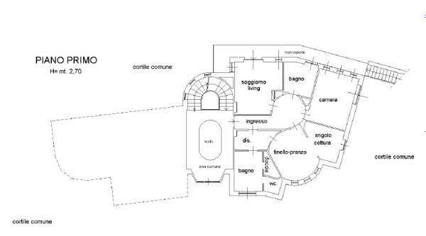
Situated in the splendid setting of the Turin hills, the prestigious property stands in a dominant position in Baldissero Torinese, offering an enchanting panoramic view of the surrounding nature and hills. Despite its private location, the property is not isolated, ensuring maximum privacy without sacrificing the convenience of nearby services. The property, with a commercial surface area of 800 square meters, is spread over four levels, combining elegance and comfort in every detail. In the basement, the property boasts a large tavern perfect for moments of relaxation and conviviality, a spectacular indoor swimming pool for maximum luxury and well-being, as well as a garage that can accommodate up to four cars. On the floor there is also a hallway, double bathroom and cellar as well as a technical room. The ground floor is characterized by a very large reception room with large windows, which allow you to enjoy the view of the surrounding nature, and a Versailles parquet that adds a touch of class and refinement. The modern and functional kitchen has a glass window that offers access to an outdoor terrace that surrounds the house, ideal for outdoor dinners and moments of relaxation. On the floor there is a cinema/TV room, bathroom, bedroom, laundry room and kitchen pantry. On the first floor there is the master suite, a sleeping area consisting of a bedroom, a walk-in closet and a bathroom with hydromassage. The floor is completed by two additional bedrooms, a bathroom and an attic that can be used according to needs, offering additional space and versatility. The attic floor represents a functional and versatile space, with further possibilities of use. A terrace with a panoramic view completes the picture, offering an exclusive and suggestive outdoor space. This property is the perfect combination of luxury, elegance and comfort, ideal for those looking for a prestigious residence immersed in the tranquility of the Turin hills just a few minutes from Turin. For information: GIEFFE PATRIMONI Real Estate Advisor, Turin – London – Alba – Milan – Rome. (+39) 011 / 76.000.11
