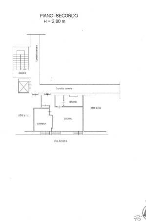
Furnished apartment for rent in the former Tobler building, Via Aosta. Turin Located in the former Tobler complex in Turin, at Via Aosta 8, part of the spaces designed by Pietro Fenoglio as the only foreign branch of Chocolat Tobler, the apartment is on the second floor with an elevator and is part of the renovation project that transformed the factory, where the legendary Toblerone chocolate was produced, into one of Turin’s most distinctive condominiums of the 2000s. On the edge of Turin’s historic center, near the Dora River, the project involved the renovation of the historic street wings and the construction of new internal ones. 75 apartments were created, featuring terraces, private gardens, and green roofs, designed to ensure low running costs and a high quality of life. The facades are insulated with next-generation materials, and the windows are made of thermally broken aluminum with high-performance glass and automated solar shading. The roofs combine laminated wood, titanium zinc, and green surfaces, which contribute to improving the urban microclimate. The complex is served by a combustion-free heating plant, powered by a heat pump that uses groundwater for heating, cooling, and domestic hot water. Each unit is equipped with an independent system with individual metering. The result is a concrete example of urban regeneration, where architecture, technology, and the environment come together to create a new concept of living: efficient, conscious, and long-lasting. The apartment, spread over 50 square meters, is rented until May 1, 2028, with a lease contract for €590.00 per month plus €150 for utilities. Fully furnished, it features an entrance hall with a small walk-in closet, a living room with an open-plan kitchen, a hallway, a bathroom with an anteroom, and a bedroom. Heating costs (centralized with meter) including condominium fees are estimated at approximately €1,800 per year with concierge service. Hot and cold air conditioning. A unique opportunity for those seeking an elegant and comfortable solution in one of the city’s most sought-after areas. The apartment is located in a highly strategic location, just steps from the center of Turin and the city’s main universities, such as the IAAD and the Einaudi Campus University. This proximity makes it an excellent investment opportunity in an area consistently in high demand among both students and professionals. The strong rental potential, combined with the convenient and well-served location, guarantees an attractive and stable income over time. For information: GIEFFE PATRIMONI Real Estate Advisor, Turin – London – Alba – Milan – Rome – Monza. (+39) 011 / 76.000.11 All the above information does not constitute contractual elements or conditions.
