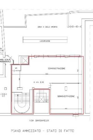
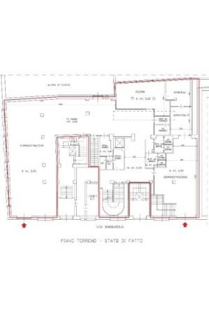
Commercial premises 1400 sqm, via Barbaroux 37-39 in Turin. In the heart of the Roman quadrilateral of Turin, more precisely at number 37 of via Barbaroux (secondary entrance and driveway also from number 39), in the stretch between via Bertola and via Garibaldi, the commercial premises currently in good maintenance conditions are equipped with a chimney and have the possibility of installing two external dehors in the case of a tenant active in the restaurant sector. The area is characterized by a dense network of neighborhood businesses (typical shops and accommodation facilities), commercial activities of various kinds, private offices (Reale Mutua headquarters) and public offices and homes of great artistic value. The neighborhood is also excellently served by public transport and offers the possibility of conveniently using the underground parking in Piazza Arbarello, thus overcoming the limitations of the ZTL. The commercial premises are characterised by the presence of large windows/shop windows on the street, great visibility thanks to the corner position and is distributed over four levels for a total of approximately 1400 m2 of commercial space divided as follows: on the ground floor, of approximately 420 m2, two large rooms, a room currently used as a kitchen, a pantry, a storage room, six bathrooms with anterooms, two of which are for disabled people, two storage rooms and two changing rooms; on the mezzanine floor, of approximately 160 m2, two large rooms with windows overlooking the internal courtyard flat roof and a bathroom; on the first basement floor, of approximately 620 m2, two large rooms with windows with air vents and ventilation system, eight bathrooms, a laundry room, two storage rooms and a changing room; on the second basement floor, of approximately 200 m2, various technical rooms and rooms used as storage. All the rooms are connected by large internal staircases and freight elevators. Independent electric air heating system. In the case of using a chimney, it will be rented at a cost of 400 euros per month. Cadastral category D8, with a cadastral income of 19,367.32 euros. The commercial premises, already home to an important restaurant brand, are now offered for sale and for rent, and can be used by any commercial business that requires visibility with high standing positioning as well as a large surface area. For information: GIEFFE PATRIMONI Real Estate Advisor, Turin – London – Alba – Milan – Rome. (+39) 011 / 76.000.11
