Cover Image
strada Comunale di Superga 39, 10132, Torino
Villa uni/bifamiliare Strada Comunale di Superga 39, Torino.
€ 650.000
€ 650.000
5 locali
430 mq
2 servizi

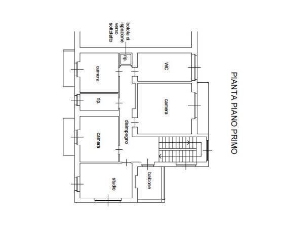
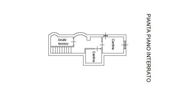
A pochi passi dalla stazione Sassi di Torino, su corso Casale e all’inizio della strada che porta alla basilica di Superga, in posizione soleggiata e panoramica, la villa è libera su tre lati ed immersa nel verde di un giardino di proprietà esclusiva di 1000 mq. La villa è disposta su tre livelli di circa 130 mq cadauno: al piano terreno ingresso fronte patio/terrazzo loggiato coperto, salone triplo, cucina e servizio. L’ampia superficie finestrata rende luminosissimo ogni ambiente e dalle porte finestre è possibile accedere direttamente al balcone che ha dal salone affaccio diretto sul verde del giardino pianeggiante. Al primo piano cui si accede da ampia scala interna alla costruzione, quattro camere ( di cui una con servizio en-suite ), doppio disimpegno e ripostiglio. Al piano sottotetto ( con colmo molto alto ) ad oggi non abitabile: ampio locale uso sgombero, che con intervento potrebbe essere reso abitativo. Impianto di riscaldamento autonomo a metano per una spesa di circa 1500.00 euro per anno. Doppi vetri, con infissi antisfondamento e antiproiettile al piano terra. Cantina al piano interrato con locale tecnico. Doppi accessi. Nella corte di ingresso una tettoia permette il parcheggio coperto a 3/4 autovetture. Categoria catastale A7. Ottimo posizionamento, in zona assai servita e comoda per ogni necessità. Per informazioni: GIEFFE PATRIMONI Real Estate Advisor, Torino – Londra – Alba – Milano – Roma. (+39) 011 / 76.000.11

Dati principali
  • Riferimento: superga
  • Locali: 5, 4 camere da letto, 1 altro, 2 servizi
  • Superficie: 430 mq
  • Tipologia: Villa
Dettagli
Caratteristiche
Stato Immobile: libero
Numero Livelli: 1
Piano: 1
Piani Edificio: 3
Numero Camere Letto: 4
Numero Altre Camere: 1
Numero servizi: 2
Cucina: abitabile
Numero Terrazzi: 1
Numero Balconi: 1
Box Auto: assente
Numero Posti Auto: 4
Cantina: presente
Mansarda: presente
Giardino Privato: presente
Riscaldamento: autonomo
Arredamento: parziale
Anno Costruzione: 1900
Tipo Costruzione: signorile
Stato Manutenzione: ottimo
Stato Costruzione: ottimo
Allarme
Esposizione Interna
Esposizione Esterna
Classe Energetica: D
IPE: 109 kWh/m² anno
Posizione
Planimetria
Invia un messaggio
Richiedi maggiori informazioni
Immobili simili
€ 435.000
€ 435.000
Contatta mail
6 locali
3 bagni
350mq
Villa unifamiliare, tre camere da letto e giardino. Cambiano
6 locali
350 mq
3 servizi
€ 290.000
€ 290.000
Contatta mail
3 locali
2 bagni
143mq
Appartamento tre camere, Corso Orbassano. Piano sesto.
3 locali
143 mq
2 servizi
€ 169.000
€ 169.000
Contatta mail
4 locali
2 bagni
104mq
Quadrilocale piano alto. Possibilità box auto
4 locali
104 mq
2 servizi