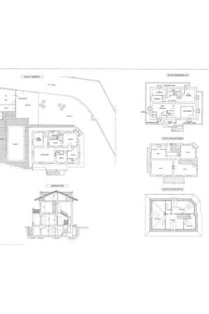
Nel comune di Verolengo, a 3 km dallo svincolo sull’A4 per Torino, raggiungibile in 30 minuti è sita la proprietà in vendita. Distribuita su un area di più di 3000 mq, la villa a carattere liberty fu edificata negli ultimi anni del 1800: ristrutturata completamente nel 2021, mantiene ancora il suo fascino ottocentesco grazie all’attenta ristrutturazione che ha saputo rinnovare l’immobile mantenendo le caratteristiche peculiari del periodo. La proprietà si sviluppa su quattro piani: al piano interrato si trova la spa, con salone idromassaggio, sala massaggi, doppi spogliatoi, locale trattamenti con sauna e bagno turco e infine un servizio. Il piano terra è invece composto dalle due camere, con servizi en suite, un ampio salone adibito a camera relax, cucina ed infine un bagno. Dalla pregiata scala in pietra posta al piano terra che conduce al piano superiore nasce l’appartamento così composto: camera padronale con cabina armadi, sala da bagno con lavanderia, salone e cucina: al piano sottotetto si trovano la lavanderia, il locale tecnico e altri due ampissimi locali funzionali a seconda delle necessità. La villa è circondata dal giardino piantumato e dal cortile totalmente pavimentato in porfido che permettono di beneficiare al meglio della zona piscina, compresa di portico e basso fabbricato adibito a bar. L’immobile si pone come trait d’union dell’architettura fine ottocentesca che si sposa ottimamente con la moderna e curata ristrutturazione raggiunta grazie all’utilizzo di materiali di altissimo pregio. Adibito in parte a struttura ricettiva e in parte residenziale, l’immobile si presta a differenti scopi ed utilizzi grazie al terreno dinanzi all’immobile dove è possibile edificare un fabbricato su 3 livelli per una superficie coperta totale di 700 mq, ad uso ricettivo. Classe Energetica E 170.47 kWh/m2 Categoria Catastale D/8 Rendita 4830 €. Per informazioni: GIEFFE PATRIMONI Real Estate Advisor, Torino – Londra – Alba – Milano – Roma. (+39) 011 / 76.000.11
