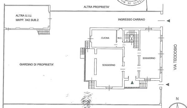
Nel cuore della città studi di Milano (area a maggiore concentrazione di istituti accademici di tutta la città), la prestigiosa villa edificata nel 1900 è disposta su tre livelli oltre semi-interrato per una superficie complessiva di 680 mq, oltre ad un grande giardino privato di circa 400 mq. La proprietà si presenta in eccellenti condizioni e ha una organizzazione interna degli spazi molto razionale, con affacci liberi su quattro lati e una doppia esposizione a Est e Ovest che premia lo spazio esterno e che oggi rappresenta un impareggiabile plus nel panorama residenziale della città. Il piano terra/rialzato ospita un ingresso diretto sulla grande zona living, uno spazio arioso e luminoso che si affaccia sul verde del giardino privato. Qui trova spazio un grande salone doppio, che ospita la zona pranzo a destra e la zona living a sinistra con veranda sul verde da qui accessibile. Cucina abitabile e un servizio. Una scala interna (o un ascensore che collega tutti i piani della casa) conduce al primo piano, dove è distribuita la zona notte: quattro camere con doppi servizi e disimpegni, oggi con cabine armadio e studio. Doppi terrazzi. Il piano secondo è organizzato come una vera e propria unità indipendente, ampio ambiente soggiorno con la possibilità di creare una cucina (grazie alla presenza degli attacchi), un disimpegno, una camera da letto con accesso alla terrazza, e un servizio. Il secondo piano è mansardato, ma con altezza di oltre 3 mt. La taverna, al piano semi-interrato, si compone di un grande locale di svago/palestra, una camera oltre a un ripostiglio, una lavanderia, un servizio e due locali tecnici con centrale termica e disimpegno. La ristrutturazione completa e il recupero architettonico ha incluso finiture di pregio, parquet, infissi con doppi vetri, aria condizionata caldo e freddo. Tutti i piani dell’unità sono comodamente collegati da un ascensore interno. Box auto doppio, con terrazzo-privacy con jacuzzi su lastrico solare. Giardino di circa 400 mq. Questa soluzione è perfetta per chi desidera vivere la città senza rinunciare al piacere di avere uno spazio aperto e vivibile. Massima sicurezza. Telecamere, antifurti vol.e perimetrali. Panic room. Due posti auto esterni. Cappotto termico nuovo. Cat.Catastale A7, con rendita di 7.612,57 euro. Immediate vicinanze di Politecnico e Statale, con tutte le principali facoltà. In zona si trovano alcune delle migliori cliniche milanesi e centri di ricerca medica. Una zona centrale ma non troppo, residenziale ma super-servita. È una zona storica della città ma la presenza della popolazione universitaria la rende anche giovane e viva. Linea metropolitana M2 (fermata Piola) e numerose linee di superficie, area ad alta concentrazione di scuole di ogni ordine e grado, alimentari, farmacie, palestre, lavanderie etc. Per informazioni: GIEFFE PATRIMONI Real Estate Advisor, Torino – Londra – Alba – Milano – Roma. (+39) 011 / 76.000.11
