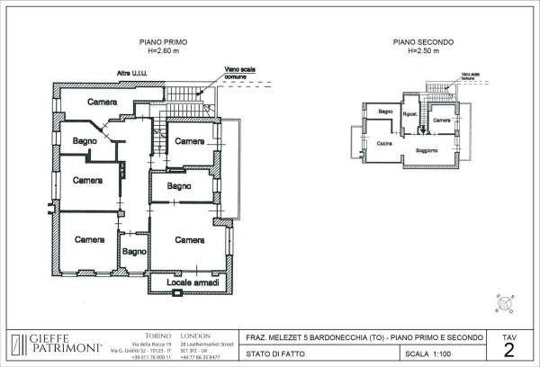
Rif: bardonecchia – Bardonecchia e una cittadina nel cuore delle montagne olimpiche della Valle di Susa, che ben combina lo charme di un piccolo villaggio con la modernita della citta. Facilmente raggiungibile grazie all’autostrada che collega Torino alla Francia con il traforo del Frejus o tramite la linea ferroviaria, Bardonecchia con il suo comprensorio sciistico di oltre 100 km di piste, risulta essere una delle mete preferite dagli amanti degli sport invernali. L’immobile in prossimita di Campo Smith a due passi dalle piste da sci, ha un carattere montano, ed e circondato da un ampio giardino piantumato. Nel suo complesso la superficie e di circa 650 mq disposti su cinque livelli. Al piano terra l’ingresso e doppio, e conduce ad un grande salone, da cui si distribuiscono in maniera aperta una sala da pranzo ed una sala con camino. L’intero spazio viene illuminato da grandi vetrate, che si affacciano sul giardino circostante. Sempre al piano anch’esso illuminato da vasta vetrata uno studiolo, un’ampia cucina abitabile ed una sala da bagno. Al primo piano quattro camere da letto matrimoniali un locale biancheria e tre servizi. La camera patronale e dotata di servizio interno e cabina armadi. Al secondo piano, una mansarda appena ristrutturata è accatastata come unita immobiliare indipendente, producendo un ottimo reddito tramite affitti di breve durata. L’appartamento è dotato di tutti i confort per una famiglia in vacanza, l’ingresso accede ad un unico grande ambiente adibito a soggiorno-living con cucina a vista. La casa vacanza e dotata di una camera da letto matrimoniale, una cameretta ed un servizio. La splendida vista sulle montagne e lo spazio aperto del soggiorno, rendono questa mansarda particolarmente luminosa. Nei due piani interrati comodi spazi accessori proporzionati alla proprieta: una sala giochi, una sala armadi, un garage capace di ospitare tre automobili ed una cantina circondata da intercapedini. La villa costruita nella meta degli anni settanta, e stata edificata con materiali e tecniche di costruzione di estremo pregio, da renderla assolutamente durevole nel tempo e non soggetta a manutenzioni straordinarie. Le spese di gestione sono tutto sommato contenute, per scaldare l’intero immobile si spende circa 4000,00 euro l’anno grazie al teleriscaldamento. Ed un sistema di celle fotovoltaiche produce elettricita ed aiuta, per mezzo di un moderno accumulo, il riscaldamento dell’acqua sanitaria. Questi sistemi sono modulari. Spese condominiali molto contenute. Per informazioni: GIEFFE PATRIMONI Real Estate Advisor, Torino – Londra – Alba – Milano – Roma. (+39) 011 / 76.000.11
