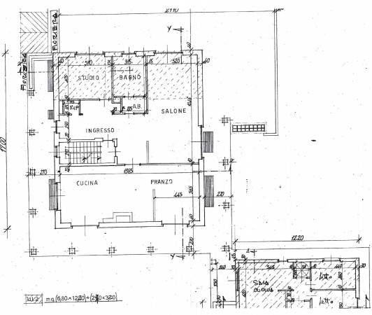
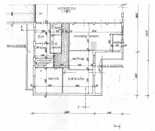
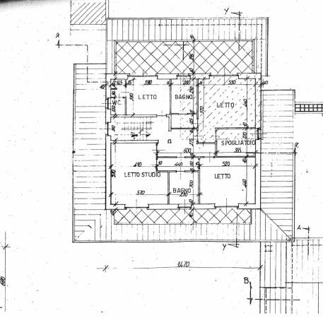
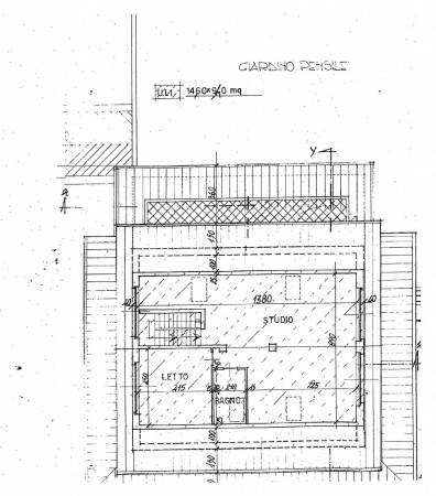
A pochi passi dal centro di Ciriè, in località Devesi e a pochi minuti di macchina dalla città di Torino, la proprietà signorile di altissimo standing è composta da un edificio primario ed una casa del custode entrambe inserite all’interno di un parco di circa 10.000 mq piantumato e con la presenza di una grande piscina. La villa si sviluppa su tre piani più interrato per una metratura di circa 900 mq. Al piano terreno con accesso da cancello carraio elettrico o pedonale fronte strada, l’ampio ingresso con vestiere, conduce al salone di rappresentanza che affaccia direttamente sul grandissimo terrazzo e sul verde del parco e sull’ azzurro della piscina. Ampio ripostiglio, sala studio-office privato, servizio ospiti con antibagno. Sempre al piano terreno ampia zona living con cucina abitabile dotata camino / forni e grande sala da pranzo. Al piano primo accessibile da scala interna che disimpegna tutti i piani della villa, trovano spazio quattro camere da letto e tre servizi, di cui uno en-suite per la master-room che dispone di ampia cabina armadio. Grande terrazzo e balcone. Al piano sottotetto completamente abitabile, grandissimo salone con camera ospiti e servizio. Al piano semi-interrato, con accesso da passo carraio e portone elettrificato, box auto e magazzino per più di cinque autovetture, locali ripostiglio, legnaia, dispensa, taverna con camino, locale palestra e doppia cantina. Separata dalla villa principale, la villetta del custode è composta da: al piano terra, ingresso living con cucina a vista, servizio e due camere da letto. Al piano interrato, ripostiglio taverna e doppia cantina. Parco piantumato e pianeggiante di circa 10.000 mq. Piscina di generose dimensioni. Locali magazzini presenti nel parco per attrezzi. Tettoia con forno esterno. Riscaldamento autonomo a metano o a legna con vari camini, per una spesa di circa 4500.00 euro per anno. Antifurto volumetrico e perimetrale. Depuratori dell’aria e sistema di aspirazione. Proprietà di altissimo livello in perfette condizioni di manutenzione, con ottima privacy ma non isolata a garanzia di una totale sicurezza. Per informazioni: GIEFFE PATRIMONI Real Estate Advisor, Torino – Londra – Alba – Milano – Roma. (+39) 011 / 76.000.11
