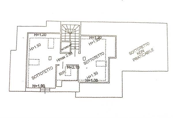
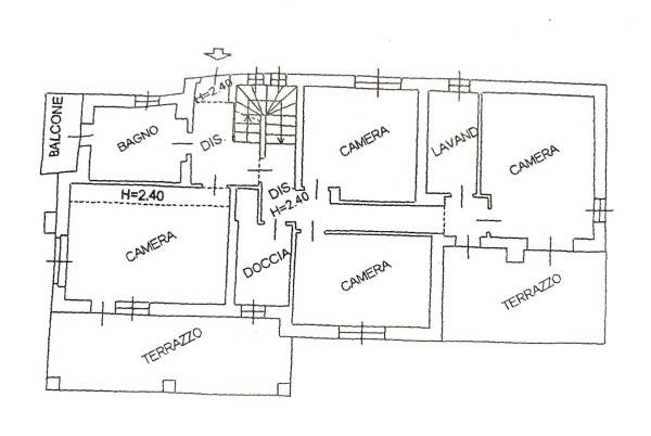
Curata e moderna villa, oggetto di recente e completa ristrutturazione (2018/2019), ubicata a ridosso di Ronco Biellese, a pochi minuti di auto da Biella, in paese collinare, e’ ubicata in zona tranquilla, non trafficata poiche’ l’accesso avviene tramite strada sterrata utilizzata dai residenti delle ville limitrofe. Zona residenziale, comoda ai servizi, la villa dispone a corredo di ampio terreno curato a giardino, interamente recintato, con piazzale comodo che puo’ ospitare diverse autovetture. La villa dispone di cappotto su tre quarti dei muri perimetrali, inferriate lato strada, dotata di impianto fotovoltaico e pannelli solari termici con caldaia a condensazione. I vetri doppi o tripli, con apertura a vasistas sono accessoriati con zanzariere. Presente impianto antifurto. Al piano terra: porticato dedicato a soggiorno- pranzo all’aperto con elegante barbecue, ingresso, ampia e moderna cucina con zona pranzo, soggiorno con camino, servizio, ripostiglio, cantina e disinpegno. Tramite scala interna si accede al piano primo con ulteriore accesso dall’esterno piano strada, composto da quattro camere, due bagni, balcone e due terrazzi. Al piano secondo sottotetto e ripostiglio. Ideale buen retiro per chi desidera una villa in campagna moderna, dotata di ogni comfort a pochi passi dalla citta’. Per informazioni: GIEFFE PATRIMONI Real Estate Advisor, Torino – Londra – Alba – Milano – Roma. (+39) 011 / 76.000.11
