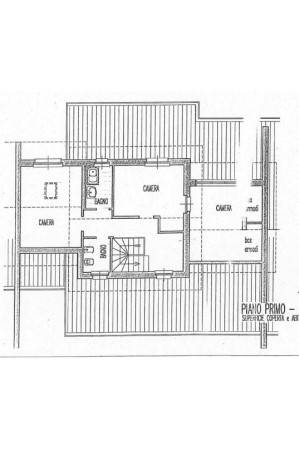
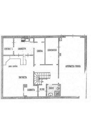
A pochi metri dal centro di Pino Torinese, a 10 minuti da Torino percorrendo Strada Traforo del Pino è presente il complesso residenziale che ospita la villa. Nonostante la posizione comoda per servizi e vicinanza a Torino, l’immobile è immersa nel verde e nel silenzio che caratterizza la collina Torinese. La proprietà è stata edificata nel 1990, suddivisa in tre ville a schiera circondate da un giardino piantumato. Doppio ingresso tra viale carrabile che porta alle autorimesse e viale pedonale. L’immobile si sviluppa su tre livelli: Al piano interrato troviamo in primis l’autorimessa che può ospitare due veicoli, con ulteriore posto auto dinanzi all’accesso del box. Il piano è suddiviso tra una taverna con bellissima zona camino, con cucinino adiacente e bagno del piano, e la zona della cantina, compresa di centrale termica, lavanderia e guardaroba. Attraverso l’ingresso pedonale del complesso, raggiungiamo l’ingresso della villa: ingresso su un grande soggiorno di impatto molto luminoso grazie alle ampie finestre. Adiacente al soggiorno troviamo la cucina abitabile con accesso al retro del cortile. Completano il piano una camera da letto con locale sfruttabile come cabina armadi, e ampio servizio. La zona esterna è divisa tra cortile frontale compreso di terrazzo abitabile di 12 mq circa e la parte di giardino piantumato che circonda il terrazzamento. Il retro invece è composto da un giardino decorato che contorna l’ingresso e il patio coperto d’entrata. Al piano primo è presente la zona notte, con servizio completo e due camere da letto. La villa si presta a modifiche interne quali migliorie dal punto di vista energetico attraverso l’installazione di pannelli avendo una grande superficie del tetto esposta totalmente a Sud. Le condizioni sono buone: pavimenti in cotto fiorentino tenuto egregiamente, come del resto gli infissi (legno doppio vetro) e le ceramiche dei bagni. Ottima soluzione per vivere la tranquillità della collina a breve distanza dai servizi e da Torino: è possibile sfruttare la camera del piano terra come ufficio nel caso si desiderasse adibire parte della propria casa al proprio ufficio. Il giardino ad uso esclusivo è di circa 150 mq, riducendo eventuali spese di gestione. Le spese condominiali sono di circa 900 €/anno. Riscaldamento autonomo a metano. La proprietà si estende per 350 mq commerciali, con 2000 mq di giardino condominiale. Categoria Catastale A/2. Attestato C. Per informazioni: GIEFFE PATRIMONI Real Estate Advisor, Torino – Londra – Alba – Milano – Roma. (+39) 011 / 76.000.11
