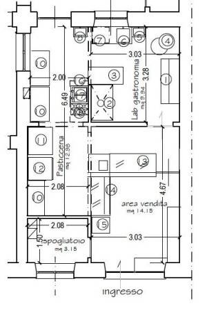
In posizione strategica, nelle immediate vicinanze del Politecnico ed in area densamente abitata, è sito il locale commerciale che ospita l’attività. La posizione garantisce infatti, clientela costante grazie alla forte presenza di studenti universitari, professionisti e residenti. La gastronomia con laboratorio, è sita nel cuore del quartiere San Paolo e svolge la sua attività sotto il marchio Bricks come laboratorio e consumazione sul posto ma anche come delivery e take away, senza somministrazione. Ottimo per Gastronomie, Dark Kitchen, Pasticceria, Rivendita di Prodotti Alimentari. L’attività si sviluppa all’interno di un locale di 42 mq, finemente ed opportunamente ristrutturati nell’estate del 2024. La ristrutturazione ha coinvolto il locale nella sua interezza, intervenendo sugli impianti elettrico ed idrico, con certificazioni, e risanando la cantina come magazzino alimenti con deroga Spresal. Il locale è aperto sei giorni su sette, 8:00 / 22:00. Buona parte dell’attrezzatura risulta inserita all’interno risale al 2024, ed è compresa di abbattitore e ferma lievito, 2 forni, lavastoviglie, pozzetti positivi negativi, due fuochi, vetrinetta refrigerata Ceam Jewelery. Impianto ad aria condizionata caldo e freddo. Documentazione completa in ordine, ottima clientela selezionata. Canone di affitto dei muri di 6000 euro all’anno con contratto di locazione in prima stipula luglio 2024. Ottimo pacchetto clienti, ottima visibilità, totalmente ristrutturato e completo in ogni aspetto. Canna fumaria certificata maggio 2024 Canone di 500 €/mese locazione. Spese 50 euro al mese Durata residua affitto 10 anni (luglio 2036) Per informazioni: GIEFFE PATRIMONI Real Estate Advisor, Torino – Londra – Alba – Milano – Roma – Monza. (+39) 011 / 76.000.11 Tutti i dati sopra riportati non costituiscono elementi né presupposti contrattuali
