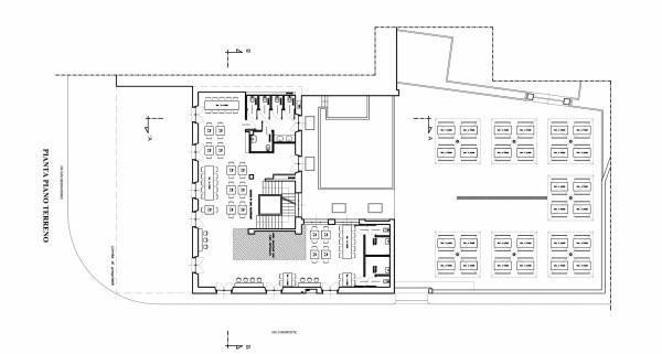
Nel cuore del quartiere San Paolo di Torino, la palazzina che ospita l’attività di Ristorante – Cocktail bar è stata interessata dalla ristrutturazione totale ad opera dell’attuale proprietà. La localizzazione di detta palazzina è prospicente la chiesa di San Bernardino, che da il nome alla via. L’insegna ROL Fusion Eat and Drink, occupa in posizione strategica parte della zona pedonale del quartiere San Paolo. Il locale è oggi adibito ad attività di ristorazione. In ottime condizioni interne completamente ristrutturato, con impianti a norma e impianto di riscaldamento autonomo con pompa di calore. l locale si sviluppa su più livelli: al piano interrato i depositi, locali tecnici, magazzino e locali in uso alla attività. Piano terra, con sale, banconi, e cucina con servizi e 110 posti a sedere. Piano terrazzo con 40 posti a sedere. Piano primo con 45 posti a sedere. Dehor con 150 posti a sedere. 5 servizi. Impianto ad aria condizionata caldo e freddo. Impianto fotovoltaico. Metratura totale di 500 mq interni e 500 mq esterni. Fatturato di altissimo livello dimostrabile. Carico/scarico. Contratto di affitto dei muri di euro 5800 per mese. Arredi fissi e tutte le attrezzature verrebbero cedute con l’attività e comprese nel prezzo di vendita. Documentazione completa in ordine, ottima clientela selezionata. Ottimo pacchetto clienti, ottima visibilità, totalmente in ordine e completo in ogni aspetto. Il locale sarà libero all’atto di vendita. Per informazioni: GIEFFE PATRIMONI Real Estate Advisor, Torino – Londra – Alba – Milano – Roma. (+39) 011 / 76.000.11
