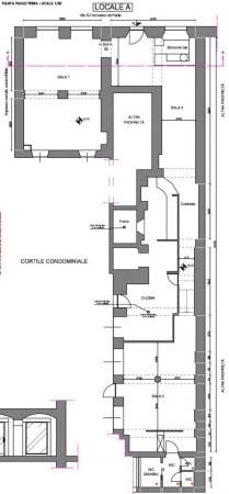
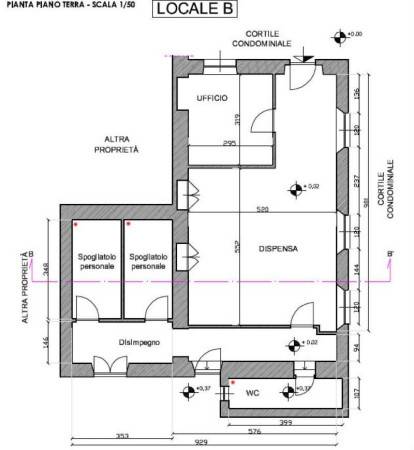
Nel cuore del centro di Torino, tra via Mazzini e corso Vittorio Emanuele, in via San Francesco da Paola, il locale commerciale è oggi adibito a ristorante/pizzeria di altissimo livello. Completamente ristrutturato in ogni sua parte da nota firma di architettura, ha impianti a norma e certificati, canna fumaria certificata, impianto di condizionamento dell’aria con inverter e riscaldamento autonomo a metano più quattro fan-coil unit, per una spesa di circa 24.000,00 euro per anno comprensive di luce e gas. Il locale dispone di 90 posti a sedere nella sala interna ed altri 22 esterni nel dehor ( fisso fino al 2021 con una spesa di 3600.00 euro per anno ), due servizi interni per il pubblico a norma come previsto per legge, sala con più vetrine su strada, area reception in ingresso, cucina completamente attrezzata con cappa nuova appena installata, spogliatoio e servizio per il personale, cantina e magazzino di circa 100 mq. Possibilità di carico / scarico nel cortile interno. Il locale è aperto tutte le sere con orario 19-23 / il sabato e domenica solo per il pranzo, con licenza di somministrazione tipologia 4. Arredi fissi e tutte le attrezzature, come freezer, banconi frigoriferi, scaffalature, tavoli e sedie e tutta l’attrezzatura della cucina verrebbero cedute con l’attività e in essa comprese nel prezzo di vendita. Impianto ad aria condizionata presente in ogni locale. Documentazione completa in ordine, ottima clientela selezionata. Canone di affitto dei muri di 2200.00 euro al mese comprensivo di spese, con contratto di locazione in prima stipula gennaio 2018. Ottimo pacchetto clienti, ottima visibilità, totalmente ristrutturato con spiccato accento sul design ( camino bio-etanolo in ingresso) e completo in ogni aspetto con importantissimo “libro cespiti” . Fatturato di altissimo livello, dimostrabile e visionabile. Spese rifiuti valutabili in circa 9500.00 euro per anno. Spese di acqua valutabili in circa 6000.00 euro per anno compreso sistema purificazione. Il locale è tutt’ora aperto e funzionante e sarà libero all’atto di vendita, ad oggi occupa numero 8 dipendenti con contratto + 1. Presenti 7/8 posti auto in corte interna. Ottimo posizionamento centralissimo nella città di Torino, vicinanza stazione di Porta Nuova, facilità di parcheggio con la vicinanza del Bodoni Parking e marchio conosciutissimo dalla clientela, sono solo alcuni tra i “plus” che vanta questa attività. Da sottolineare il valore dei crediti fiscali che possono essere “girati” alla nuova Proprietà subentrante. Affiancamento possibile se richiesto. Per informazioni: GIEFFE PATRIMONI Real Estate Advisor, Torino – Londra – Alba – Milano – Roma. (+39) 011 / 76.000.11
