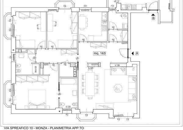
Situato nel cuore pulsante del quartiere di San Biagio e a pochi passi dalla suggestiva Villa Reale di Monza, l’armonioso ed arioso appartamento è progettato per il benessere di chi lo abita. Il quartiere dalle origini antiche, durante gli anni ‘50 e ‘60 del ‘900 ha subito un rapido mutamento trasformandosi da borgo agricolo in uno dei quartieri più eleganti e serviti della Città, con rinomati Istituti Scolastici, come il Collegio Bianconi e Collegio Villoresi, ristoranti e negozi di comprovata tradizione. L’appartamento, in fase di totale ristrutturazione e valorizzazione, composto da quattro locali oltre i servizi, è posto al piano rialzato con tre balconcini di pertinenza e affaccio sul curato giardino condominiale. Dispone di cantina, riscaldamento centralizzato, impianto di aria condizionata caldo e freddo e predisposizione antifurto, doppio ascensore, servizio di portineria, possibilità di box singolo (con prezzo a parte di € 25,000.00). La soluzione proposta rara per via dei numerosi comfort, comprende la possibilità di scegliere una nuova distribuzione degli spazi, nuove pavimentazioni, rivestimenti con materiali di altissima qualità. Categoria catastale A2. Trasferimento di proprietà soggetto ad IVA. Possibilità di beneficiare del bonus ristrutturazioni in base alle attuali normative. Per informazioni: GIEFFE PATRIMONI Real Estate Advisor, Torino – Londra – Alba – Milano – Roma. (+39) 011 / 76.000.11
