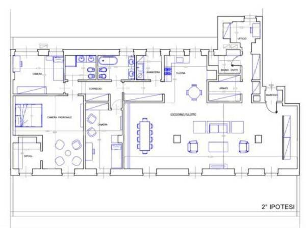
Rif: roma – Torino, via Roma. Attico. A pochi passi dal salotto di Piazza San Carlo, l’attico è parte di uno stabile prestigioso ed è dotato di due arie una su corte interna / ampio balcone di circa 20 mq e una su via Roma / terrazzo di circa 100 mq con vista impareggiabile. L’appartamento completamente ristrutturato in ogni impianto e servizio è dotato di ogni comfort oltre che sistemi di sicurezza antifurto volumetrico e perimetrale e video sorveglianza. Gli spazi sono distribuiti in modo quasi totalmente open-space, con ingresso diretto su enorme salone dotato di camino-design che offre diversi accessi diretti al terrazzo. Un ampio corridoio di passaggio disimpegna le camere studio e vestiere di ingresso, la cucina abitabile e la sala lavanderia tutte dotate di accesso al grande balcone lato corte interna. Doppi servizi lui e lei, con vestiere privati e antibagni. Camera da letto con accesso al terrazzo, dotata di zona fitness, zona home-theatre e zona studio. Sono state progettate e indicate in planimetria soluzioni che contemplano la creazione di due o tre camere da letto. E’ presente una cantina di notevoli dimensioni. Servizio conciergerie completo. Impianto di condizionamento e raffrescamento dell’aria senza split esterno. Riscaldamento autonomo a metano con quota fissa utilizzo caldaia condominiale. Il riscaldamento è autonomo a metano con quota fissa annuale di utilizzo della caldaia condominiale pari ad 472,50 euro. Le spese ordinarie riferite al consuntivo della stagione 2017-2018 ammontano ad 5.000,00 calcolate su base annua, con servizio portineria e conciergerie. L’impianto di condizionamento e di raffrescamento dell’aria è senza split esterno. La ristrutturazione di altissimo livello con utilizzo di materiali sofisticati e di impatto, il posizionamento nel cuore del centro di Torino e la distribuzione degli spazi in questo immobile conferiscono all’attico un prestigio e un carattere non consueto nel panorama immobiliare della città. L’attuale suddivisione degli spazi interni può essere oggetto di rivisitazione per poter venire incontro alle diverse esigenze abitative personali; nella sezione delle planimetrie pubblicate sono state progettate ed indicate soluzioni che contemplano la creazione di due o tre camere da letto. La categoria catastale dell’immobile è A/2 con una rendita di 3.579,05 euro Possibile stipulare un contratto di affitto, 3+2 o 4+4 con canone di locazione fissato a 5500.00 euro mese più spese. Per informazioni: GIEFFE PATRIMONI Real Estate Advisor, Torino – Londra. (+39) 011 / 76.000.11
