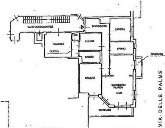
Rif: alassio – Sito in una delle vie più belle della rinomata perla ligure, Viale delle Palme in Alassio, a pochi passio dal famoso “budello”, l’appartamento che è stato interessato da una ristrutturazione di grandissimo livello dispone di una vista completa fronte mare aperta e panoramica. L’immobile occupa lo spazio del terzo piano ed è dotato di ascensore ed ha una metratura di circa 130 mq. Risulta ad oggi distribuito in: ingresso ampio, luminosissimo salone, cucina abitabile, tre camere da letto, doppi servizi, lavanderia, balcone e terrazzo vivibile dal quale si gode di una magnifica vista sul golfo a meno di 50 metri da una delle piu’ belle spiagge di Alassio. La ristrutturazione risale al 2004 ed ha avuto particolare cura e attenzione ad ogni dettaglio dai decori delle pareti ai pavimenti in granito anche per quello che concerne il terrazzo ai marmi pregiati applicati nei servizi. Serramenti in legno con doppi vetri. Impianto di allarme presente, porta blindata, serrande elettriche. Spese condominiali contenute e valutabili in 1000,00 euro per anno. Riscaldamento autonomo a metano. Cat.Catastale A3 Per informazioni: GIEFFE PATRIMONI SRL, StudioImmobiliareAssociato, Torino – London. (+39) 011 / 76.000.11
