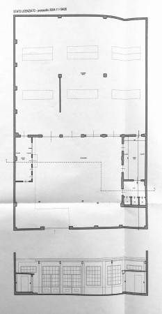
Rif: pesaro – Sito in una zona a forte riqualificazione urbanistica di Torino, il grande loft è una realizzazione ex-novo e mai abitata risultante dalla trasformazione di un opificio post-industriale ad opera della firma d’architettura nota dello Studio Pession. Distribuito su di una superficie di 500 mq commerciali, si compone di una parte coperta di 330 mq e di una parte esterna a tutta altezza ( tettoia ) di circa 170 mq. L’accesso al fabbricato interno corte avviene da via Pesaro, attraverso il passaggio di un androne del condominio prospicente. Un cancello elettrico permette l’accesso nella proprietà con l’ingresso anche carraio in un patio/corte coperto utile per autovetture ed altro. Il Loft è leggermente rialzato rispetto al piano corte per la creazione del vespaio di aerazione, è dotato di ampie vetrate con triplo vetro e gas argon interno che garantiscono anche grazie alla loro presenza sul tetto, una luminosità fuori dal consueto. Ampio salone con cucina a vista di circa 200 mq con camino, due servizi con antibagno, tre camere da letto e ripostiglio. Di grande impatto un giardino d’inverno completamente vetrato e accessibile sito tra le due camere da letto con affaccio sul salone. Riscaldamento autonomo e a pavimento a metano. Impianto ad aria condizionata caldo e freddo, videocitofono, cancello elettrico. Impianto elettrico certificato con progetto e impianto di climatizzazione (02 macchine separate con due canali di mandata). Luci interne FLOS, predisposizione impianto di allarme con cavi già passati interno ed esterno, predisposizione videocontrollo con cavi già passati interno ed esterno, impianto trasmissione dati completo con 60 prese utp e mobile rack funzionante, velux elettrici a motore, serramenti in legno con doppi vetri, cappotto isolamento perimetrale ed a soffitto. Nel cortile c’è un locale tecnico con porte e tettoia cortile dichiarata e giardinetto privato con terriccio piantumato. Il fabbricato è indipendente, non fa parte del condomino e partecipa soltanto alle spese di pulizia androne cortile, luce cortile e passo carraio, per un complessivo di 400,00 euro per anno. Cat. A/3. Soluzione abitativa unica del suo genere a pochi passi dal centro di Torino. Per informazioni: GIEFFE PATRIMONI Real Estate Advisor, Torino – Londra – Alba – Milano – Roma. (+39) 011 / 76.000.11
