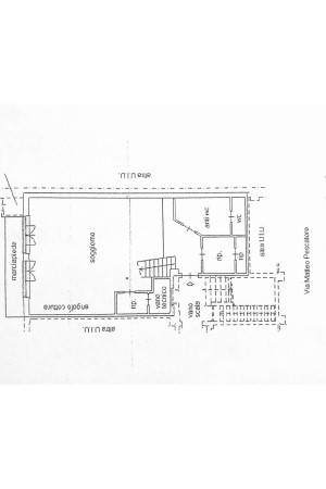
Rif: matteo pescatore – Nel cuore del centro di Torino, in via Matteo Pescatore, il loft è parte di un elegante palazzo edificato nel 1950. L’immobile è stato riconvertito da commerciale / opificio a residenziale preservando l’esistente struttura in cemento armato che conferisce un sapore contemporaneo avanguardista, ubicato a due passi dalla brulicante piazza Vittorio Veneto e la chiesa della Gran Madre a pochi passi dal Po. La dimora e’ molto ben esposta e riceve luce diretta ad ogni ora del giorno, anche grazie alle grandissime superfici vetrate perimetrali e del tetto. La zona living si compone di un grande open space, con un ingresso che separa la zona vestiere / ripostiglio / lavanderia dalla sala con una cucina all’americana dal volume compatto a piena vista. Al piano ingresso un grande servizio con antibagno. Vano tecnico sottoscala e ripostiglio. Le ampie vetrate che cingono parte del perimetro della sala garantiscono luminosità a tutto l’immobile. Al secondo livello raggiungibile attraverso una scala interna di design, completamente in ferro, una grande camera da letto a tutta altezza, una cabina armadio, servizio con anti-bagno. L’abitazione è dotata di riscaldamento centralizzato con termo valvole applicate per una spesa di circa 1100.00 euro per anno. Impianto ad aria condizionata in tutti gli ambienti. La proprietà si completa di una cantina di pertinenza. L’appartamento a richiesta viene alienato completamente arredato. Spese condominiali valutabili in circa 800.00 euro per anno. Un vialetto privato è comoda zona relax nel retro dell’abitazione, fruibile nella stagione estiva. Comfort e modernità, sentirsi avvolti dall’autenticità del quartiere, come accade nelle prestigiose metropoli estere. Loft ideale come “pied-a-terre”, o ancora di più come investimento sicuro per AirBnB. Per informazioni: GIEFFE PATRIMONI Real Estate Advisor, Torino – Londra – Roma. (+39) 011 / 76.000.11
