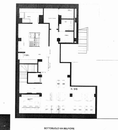
Nel pieno del cuore del quartiere San Salvario di Torino, il locale commerciale è disposto oggi su due livelli, frutto dell’unione di due subalterni C1, più piano interrato sempre accatastato C1. Il locale distribuito su circa 320 mq in via Belfiore nr.11, è stato oggetto di una recentissima ristrutturazione completa e attentissima ad ogni aspetto. Dotato di canna fumaria, chiusure di sicurezza elettrificate, e impianto ad aria condizionata muti-inverter a soffitto in ogni ambiente. Completamente vetrinato fronte strada con porta vetri in ingresso, gode di grande luminosità. Al piano terra è distribuito in circa 210 mq, con due ampi locali, zona tecnica e sevizio a norma di legge. Al piano interrato raggiungibile da grande scala interna, trovano spazio due sale, uno spogliatoio e un servizio completo per altri 110 mq. E’ possibile posizionare un dehor esterno per circa 25 mq. Il locale è nuovo in ogni aspetto architettonico/strutturale e in ogni impianto idrico ed elettrico. Possibilità di carico e scarico in cortile. L’immobile è attualmente locato ad attività ristorativa, ottimo per investimento. Per informazioni: GIEFFE PATRIMONI Real Estate Advisor, Torino – Londra – Alba – Milano – Roma. (+39) 011 / 76.000.11
