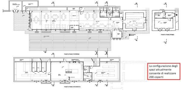
Espace San Bernardo, grazie al collegamento internazionale con gli sci ai piedi ci si collega alla stazione francese de “La Rosiere”, per un totale di 160 km di pista. Portata oraria complessiva di 60.000 persone. L’edificio, oggi Maison-Carrell ristorante e bar, posa su un sedime a 2100 mt di quota direttamente sulle piste da sci. La struttura si divide in due porzioni, una costituita da portali in acciaio, l’altra da muratura portante con rivestimento in pietra. La copertura è in legno con travi antiche. Ristorante caratterizzato da grandi superfici vetrate. La cucina al piano interrato per 240 mq è raggiungibile da scala interna oltre che ascensore e monta-vivande ( cucina ad induzione celle frigorifere e deposito merci ). Al piano terra 230 mq, ristorante e bar con ampissima terrazza esterna per un totale di 300 posti a sedere utilizzabili sia d’estate che d’inverno. Terrazza di circa 350 mq. Al primo piano monolocale di 30 mq con servizio con vasca idromassaggio. Fabbricato riscaldato con centrale termica alimentata a pellet. Zona servita da acquedotto comunale e collegata a linea elettrica. La struttura di facile accesso in periodo estivo e direttamente sulle piste da sci nel periodo invernale. Nella proprietà è da considerare la possibilità di ristrutturare una ampia baita dalle dimensioni di circa 240 mq, con possibilità di progetto per quattro suites dotate di ogni comfort / jacuzzi. Entrambe le strutture hanno nella immediata prossimità la possibilità di eliporto/elisky. Possibile cessione delle quote societarie per acquisto della struttura nel suo complesso. Locale caratterizzato da finiture di elevata qualità, travature antiche e restaurate, struttura portante in acciaio, pavimentazione interna in gress con piccoli tombini per pulizia, drenaggio dell’acqua. Rivestimenti in boiserie, serramenti in alluminio con doppio vetro e taglio termico. La stazione di La Thuile in periodo invernale è stata protagonista della Coppa del Mondo di sci e d’estate lascia ampio spazio a mountain-bike e down-hill. Un angolo di paradiso in quota per sportivi e non solo, in prossimità dell’arrivo della funivia. Per informazioni: GIEFFE PATRIMONI Real Estate Advisor, Torino – Londra – Alba – Milano – Roma. (+39) 011 / 76.000.11
