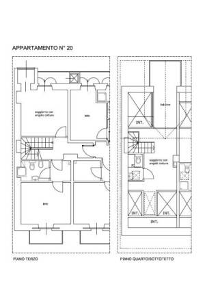
All’interno del quartiere Cit Turin, si trova lo stabile di epoca fine ottocentesca con eleganti caratteristiche liberty, cifra stilistica che caratterizza il quartiere storico di Torino. Dal frazionamento della palazzina, una volta utilizzata come attività di residence, è nata ‘’ FRANCIA NOVANTANOVE ‘’ con la creazione di 26 appartamenti, tra loft, appartamenti e mansarde. Sito al terzo piano con ascensore, è disponibile l’ultimo trilocale. Disposto su due livelli è composto da due camere da letto con balcone, servizio e ripostiglio al piano terzo, e soggiorno cucina e servizio al piano quarto. Il soggiorno ha uno splendido sfogo esterno su un terrazzino con affaccio su interno cortile. Doppia esposizione Est-Ovest che rende molto luminoso l’immobile durante tutto l’arco della giornata. Possibilità di acquisto di posti auto nell’autorimessa privata sita al piano interrato al prezzo di 22.000 € cadauno. Riscaldamento autonomo. La palazzina ha vissuto una completa opera di riqualificazione e ammodernamento dello stabile, lavori descritti all’interno del capitolato. Ottimo investimento da reddito. Categoria Catastale A/3 Rendita Catastale 809,55 Per informazioni: GIEFFE PATRIMONI Real Estate Advisor, Torino – Londra – Alba – Milano – Roma. (+39) 011 / 76.000.11
