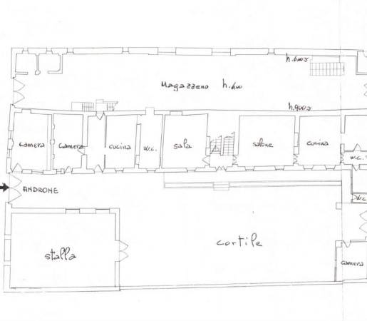
Rif: rivalba – Rivalba, Regione Case Sparse, in posizione dominante ma non isolata, a 200 mt dalla strada provinciale che collega Gassino T.se a Torino, il cascinale indipendente da ristrutturare è elevato su due livelli fuori terra, con un terreno circostante di circa 131.000 mq. L’edificio è composto da un fabbricato di costruzione anni 60 / 70, elevata su due livelli fuori terra, e da una parte risalente alla prima metà dell’800. Il fabbricato a destinazione abitativa è elevato a due piani fuori terra oltre al piano cantinato collegati fra loro da scala esterna e scala interna. A lato della costruzione principale che misure circa 2000 mq, è sito un fienile per circa 414 mq. L’edificio è collegato alla corrente elettrica, al gas metano, all’acqua potabile e alla rete fognaria. L’intera superficie coperta del cascinale si può recuperare e trasformare in residenziale. E’ possibile demolire completamente il fabbricato, ricostruire all’interno del terreno il volume preesistente, anche in più fabbricati distinti. Si può aumentare del 20% l’attuale superficie residenziale oltre ad un’ulteriore aumento di volume previsto dal “Piano Casa”. La zona dove insiste il fabbricato non ha particolari vincoli e il Piano Regolatore Comunale ammette residenze private, residenze collettive come case di cura, attività ricettive, strutture commerciali, attività terziarie quali, ristoranti e artigianato di servizio. Zona immersa nel verde, a pochi minuti da Torino. Per informazioni: GIEFFE PATRIMONI Real Estate Advisor, Torino – Londra. (+39) 011 / 76.000.11
