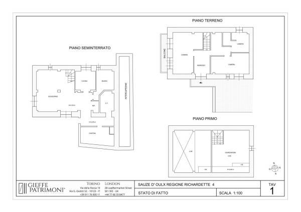
Rif: Sauze d’Oulx – Sauze d’Oulx e’ una delle stazioni sciistiche piu’ grandi e rinomate del comprensorio della Via lattea. L’area sciistica di Sauze d’Oulx si estende su oltre 100 km di piste. L’immobile in frazione Richardette e’ una baita completamente ristrutturata nello stile e con materiali originali del periodo in cui e’ stata edificata, seconda meta’ dell’800. Lo chalet, moderno nella distribuzione degli spazi e’ circondato da oltre 1000 mq di giardino privato, immerso a sua volta in spazi aperti e montani. Per gli sciatori esperti durante l’inverno la possibilita’ di ritornare a casa con gli sci ai piedi fino all’ingresso della baita, e’ realta’. Nel suo complesso la superficie dello chalet e’ di 250 mq c.ca disposti su due piani, piu’ una zona di soppalchi con travi a vista.. Al piano terra l’ingresso su disimpegno, conduce ad una sala con caminetto, una cucina abitabile un servizio, un locale intercapedine ad uso tecnico ed una cantina. Al primo piano due camere da letto matrimoniali un servizio, un ingresso da terrazzo ed altri locali soppalcati ad uso studio. La splendida vista sulle montagne e la natura dominante tutto attorno all’immobile, rendono questa casa unica nel suo genere. Le spese per scaldare l’intero immobile sono di circa 4000,00 euro l’anno. Il riscaldamento e’ autonomo. Le spese condominiali sono molto contenute, poiche’ consistono nello sgombero neve sulla strada di accesso alla baita. Per informazioni:GIEFFE PATRIMONI Real Estate Advisor, Torino – Londra.(+39) 011 / 76.000.11
