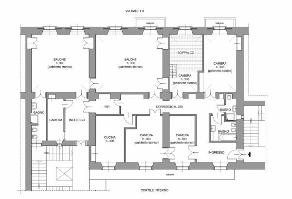
Caratterizzato dal verde del Parco del Valentino, il quartiere San Salvario-Valentino viene considerato uno dei quartieri centrali più “green” della città. Il quartiere al suo interno è ricco e colorato grazie alle svariate attività che ospita, dalla ristorazione ai negozi di restauro fino ai caratteristici mercati di Piazza Madama Cristina. Ai margini di tutto ciò il quartiere si fonde nel parco verde ed assume connotazioni residenziali di altissimo prestigio. L’appartamento in oggetto infatti è parte di un edificio del 1883 sito in via Baretti al numero 46, reso ancor più noto grazie ad una delle sopraelevazioni più famose del panorama architettonico torinese, ( ancora oggi citata nei libri di architettura ), grazie all’opera dell’architetto G.Becker. Gli spazi sono distribuiti al secondo piano nobile con affaccio su corte interna e su via Baretti angolo corso Massimo d’Azeglio, con doppio ascensore e doppi ingressi poichè ad oggi il tutto è unione di due appartamenti attigui. L’appartamento di alta rappresentanza misura 260 mq, e dispone di ingressi doppi, con disimpegni / vestiaire, quattro camere da letto, corridoi di passaggio, tre servizi / lavanderia, camera studio con soppalco, cucina abitabile, ampi e doppi saloni con meravigliosi pavimenti in legno dell’epoca e soffitti affrescati. Completano la proprietà due cantine. Riscaldamento centralizzato a metano con termovalvole installate per una spesa di 3000.00 euro per anno. Spese condominiali con servizio portineria valutabili in 3000.00 euro per anno. Grande luminosità con affaccio diretto da balconi su via Baretti e sul Valentino, e su cortile interno libero da grande balcone che segue tutta la lunghezza dell’appartamento. Indirizzo prestigioso con il vezzo d’esser stato catalogato come uno dei portoni più belli della città sabauda. I particolari d’epoca, come pavimenti e ornamenti architettonici vari oltre ai serramenti ottocenteschi con vetri soffiati a bocca e gelosie vetrate, sono il fascino stesso dell’appartamento che ha mantenuto in larga parte il carattere d’epoca in cui è nato. Categoria catastale A3 per entrambi gli appartamenti. Per informazioni: GIEFFE PATRIMONI Real Estate Advisor, Torino – Londra – Alba – Milano – Roma. (+39) 011 / 76.000.11
