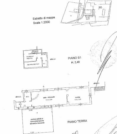
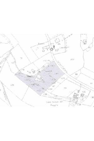
Castelnuovo Berardenga è un comune italiano della provincia di Siena in Toscana. È situato a circa 20 km dal capoluogo su un colle tra il torrente Malena e il fiume Ombrone. Dal 1932 fa parte della zona vinicola Chianti, essendo il suo territorio diviso tra la sottozona dei Colli Senesi e quella del Classico di cui è il comune più meridionale. Nel 1554 Castelnuovo Berardenga subì la sorte della madrepatria, incorporata al dominio assoluto del primo Granduca di Toscana, e proprio nel 1500 si hanno le prime tracce della proprietà situata nel cuore del Chianti, in un contesto paesaggistico di incontaminata bellezza, circondato da vigneti e oliveti. Il compendio immobiliare è un antico casale in pietra di grande fascino e costituito da più fabbricati, per una superficie complessiva di 1.000 mq circa. Oggi struttura ricettiva sotto l’insegna “Agriturismo Podere Casato” è stato oggetto di una profonda opera di restauro ( la prima nel 1995 e la seconda nel 2020) che ha dotato ogni spazio dei più moderni comfort nel rispetto e nella valorizzazione della splendida natura che lo circonda. La struttura ricavata dal cinquecentesco casale senese ottimamente conservato nei particolari e finemente ristrutturato; intorno, un ampio giardino adornato da vecchie piante di olivi nel quale si inserisce una grande piscina. Il Podere Casato è oggi realtà turistico – ricettiva. Situato a pochi passi da Siena, nel cuore della campagna chiantigiana e gode di panorami mozzafiato laddove le crete incontrano le vigne. Il casale risale all’epoca della famiglia nobile senese dei Piccolomini e figura nel catasto Leopldino del 1500. Ristrutturato nel 2020 ha mantenuto inalterata la tipicità del borgo senese d’altri tempi. E’ facilmente raggiungibile dal raccordo autostradale della Siena-Bettolle, e poco distante dal casello Valdichiana della A1. Struttura che si distribuisce in cinque appartamenti e nove camere, più di quindici servizi, con grande garage interrato, oltre che ad un ristorante con cucina interna. Riscaldamento autonomo a gpl ed impianto di condizionamento canalizzato con fan-coil caldo e freddo. Grazie alle sue straordinarie caratteristiche, alla ricca eredità culturale e posizione strategica, questa dimora si profila come la scelta ideale per chi desidera abitare in una raffinata proprietà con tutti i servizi e comfort nelle vicinanze, oppure per chi vuole gestire un resort tradizionale di altissimo standing. E quindi oltre a rappresentare un’opportunità unica nel settore ricettivo, la tenuta si rivela anche un’ideale dimora per chi è desideroso di abbracciare lo stile di vita country, senza rinunciare ai comfort della modernità. La sua posizione strategica, a breve distanza dal centro di Siena e dalle principali città d’arte toscane, la rende una scelta perfetta per coloro che desiderano coniugare la tranquillità della campagna con la vivacità della vita cittadina. Per informazioni: GIEFFE PATRIMONI Real Estate Advisor, Torino – Londra – Alba – Milano – Roma – Monza. (+39) 011 / 76.000.11 Tutti i dati sopra riportati non costituiscono elementi né presupposti contrattuali
