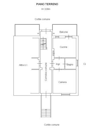
In Strada d’Harcourt 3, a Torino, bilocale di circa 57 mq, una soluzione che unisce funzionalità e comfort in un contesto residenziale tranquillo e ben servito. L’appartamento si trova al piano rialzato di una palazzina di soli due piani e si inserisce in un contesto curato e ben abitato. L’alloggio si presenta in buono stato, con ambienti ben distribuiti e funzionali. La zona giorno si compone di una cucina arredata integrata con il soggiorno, creando uno spazio pratico e accogliente. La zona notte comprende una camera da letto matrimoniale ampia, ideale per garantire comfort e vivibilità. Il bagno è funzionale e ben organizzato. Completa la proprietà un terrazzo, elemento sempre più apprezzato che offre uno spazio esterno vivibile. L’appartamento è inoltre dotato di climatizzatore e riscaldamento centralizzato con termovalvole, per una gestione ottimale dei consumi e del comfort in ogni stagione. Una soluzione ideale per chi cerca ordine, praticità e la tranquillità tipica dei contesti residenziali ben strutturati. Vengono valutate dalla proprietà esigenze di tipo TRANSITORIO e il prezzo di 1000€ richiesto al mese è comprensivo di affitto, utenze, spese condominiali, riscaldamento e wifi (formula ALL-INCLUSIVE). Per informazioni: GIEFFE PATRIMONI Real Estate Advisor, Torino – Londra – Alba – Milano – Roma – Monza. (+39) 011 / 76.000.11 Tutti i dati sopra riportati non costituiscono elementi né presupposti contrattuali
