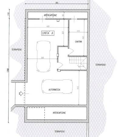
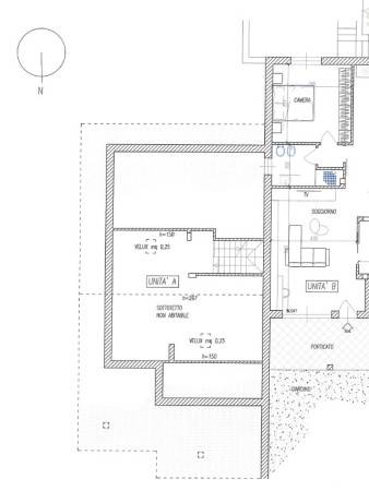
In posizione arretrata rispetto alla strada, immersa nella quiete di un contesto residenziale caratterizzato da ville e piccoli edifici circondati dal verde, sorge la proprietà. L’edificio, attualmente in fase di completamento, consente la realizzazione di due unità abitative completamente indipendenti, ciascuna composta da un piano seminterrato con autorimessa doppia e cantina, un piano terra con ampio soggiorno e cucina a vista, due camere da letto e servizio, oltre a un piano mansardato collegato internamente. La proprietà è circondata su tutti i lati da un giardino di circa 2.000 mq, che garantisce riservatezza e un piacevole affaccio sul verde. Nei 2000 mq di giardino retrostante è possibile realizzare una terza villa o magnifica piscina. L’immobile è stato progettato per raggiungere le più elevate prestazioni energetiche, con intercapedini già realizzate al piano interrato. Viene venduto nello stato di fatto attuale, con murature parzialmente realizzate e copertura ultimata, rappresentando un’opportunità ideale sia per la creazione di una soluzione bifamiliare sia per chi desideri una villa unifamiliare di ampie dimensioni. Per informazioni: GIEFFE PATRIMONI Real Estate Advisor, Torino – Londra – Alba – Milano – Roma – Monza. (+39) 011 / 76.000.11 Tutti i dati sopra riportati non costituiscono elementi né presupposti contrattuali
