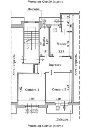
Ai piedi della collina di Moncalieri, in posizione comoda ai servizi, ma arretrata rispetto a Strada Genova garantendo dunque maggiore tranquillità e silenzio, è sito il condominio che ospita l’appartamento. Edificato nel 1974, l’edificio si sviluppa su quattro piani fuori terra, disponendo di ampia area cortile/parcheggio di fronte e sul retro del fabbricato. L’appartamento posto al secondo piano senza ascensore, si sviluppa su una superficie di 88 mq e presenta una gradevole doppia esposizione, con vista sulla precollina e scorcio sul Monviso in contesto residenziale di pregio composto da villette ed edifici pluri familiari non avendo dunque condomini occludenti nelle immediate vicinanze. La porta blindata consente l’accesso all’appartamento su ampissimo ingresso, che lascia spazio a tutti gli ambienti della casa: doppia camera da letto di cui una servita da ampio balcone, servizio finestrato, tinello con cucinino da cui si accede al secondo balcone. L’immobile gode di un’ottima luminosità non solo grazie all’esposizione, ma anche al posizionamento del compendio immobiliare, privo di edifici nelle immediate vicinanze. La proprietà si trova in ottime condizioni a seguito di ristrutturazione precedente molto curata, a partire dagli infissi in doppio vetro pvc effetto legno, servizio ‘’griffato’’ Versace, la tinteggiatura in stucco veneziano oltre le porte di pregio in ottimo stato. Riscaldamento autonomo con caldaia a condensazione, e spese condominiali molto contenute. Per informazioni: GIEFFE PATRIMONI Real Estate Advisor, Torino – Londra – Alba – Milano – Roma – Monza. (+39) 011 / 76.000.11 Tutti i dati sopra riportati non costituiscono elementi né presupposti contrattuali
